Ubud
137,74 m2
3 dormitorios
2 baños
1 planta
CUBO HOME PRESENTS
Modelo: Ubud
Nuestro modelo «UBUD» es la opción ideal para aquellos que buscan una casa modular de calidad con un diseño compacto y eficiente. Para los que buscan una residencia principal o una casa de vacaciones con un diseño único.
El diseño de la casa UBUD es único ya que cuenta con un porche continuo que conecta las areas nobles de la vivienda con el jardín y la piscina proporcionando una sensación de amplitud y conexión con la naturaleza desde cualquier punto de la casa.
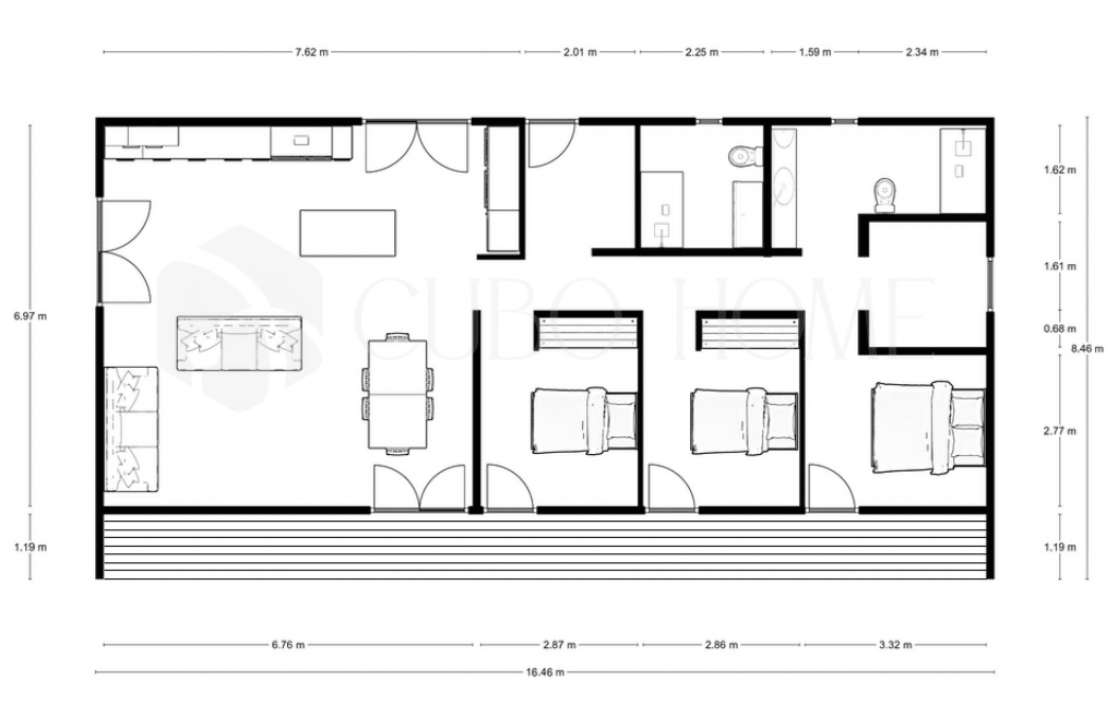
La zona de día es un espacio abierto y diáfano que une la cocina y el comedor con el jardín. Estos espacios de la casa están diseñados para ser independientes visualmente pero permitan una conexión a su vez fluida entre ellos. Además la cocina está equipada con todos los elementos necesarios para disfrutar de este espacio y cuenta con un zona de comedor auxiliar muy funcional para pasar el día a día en familia.
En la zona de noche se disponen dos dormitorios sencillos con un baño compartido y un dormitorio principal en suite con un baño y un vestidor incorporados. Esta distribución proporciona la privacidad necesaria para una buena noche de descanso y un espacio para relajarse.
TELÉFONO/WHATSAPP
689 68 57 68
sofia@cubohome.es
Modelo: Ubud
SUPERFICIE ÚTIL: 119,28 m2 SUPERFICIE
SUPERFICIE CONSTRUIDA: 137,74 m2
PLANTA BAJA
| Planta principal | m2 |
|---|---|
| Acceso | 4,33 m2 |
| Salón comedor | 22,10 m2 |
| Cocina | 23,81 m2 |
| Dormitorio 1 | 8,94 m2 |
| Dormitorio 2 | 8,85 m2 |
| Dormitorio 3 (P) | 9,54 m2 |
| Vestidor | 5,73 m2 |
| Baño 1 | 4,91 m2 |
| Baño 2 | 7,13 m2 |